首 頁
物件搜尋
我的收藏
優質團隊
人才招募
購屋試算
委託租售
部落格
友善連結
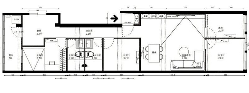
二重國小三面採光美四房
(97007)
總價
1,588
萬元
降價通知我
座落
新北市三重區金華街
坪數
23.22
坪
地坪
8.48
坪
物件型態
公寓
用途現況
住家用; 空屋
謄本用途
住家用
格局
4房/ 2廳/ 2衛
樓層
2 / 4樓
戶數/電梯
8戶, 每層2戶
屋齡
57年
建物結構
加強磚造
建物外觀
馬賽克
車位
無
邊間
否
採光
3 面
公園綠地
新北大都會公園/二重公園
學校學區
二重國小/二重國中
交通站名
公車站, 三重站
商場市場
愛買
特色說明
1.三面採光/全新裝修/稀有四房免爬山
2.近大有.三民商圈/生活採買便利
3.鄰二重國小.國中/環境清幽
4.近公園.公車站牌/生活品質佳
權狀資料
主建物
23.22
坪
附屬建物
0.00
坪
公共設施
0.00
坪
土地面積
8.48
坪
公設車位
0.00
坪
權狀車位
0.00
坪
使用分區
住宅區
坪數=主建物+附屬建物+公共設施(包含公設車位)+權狀車位。
主建物係指客廳、餐廳、臥房、浴室、廚房等室內面積。
公共設施係指區分所有建物之全部或部分所有共用之建物面積,像是樓梯間、電梯間、屋頂突出物等。
上述係由一平方公尺=0.3025坪換算,詳細資料仍以地政機關核發之謄本為準。
蘆洲復興特許加盟店
崛起不動產仲介經紀有限公司
(02)8285-5688
歡迎洽詢門市值班人員!
您好,我是詹正雄。
請撥門市電話
(02)8285-5688
由我為您提供服務。
環景照片
※ 本網頁所刊登照片如為道路街景或土地示意圖,非廣告標的所在地僅供參考,實際狀況請依使用執照或謄本所載為準。
更多物件
 同區類似物件推薦:
仁忠街近重陽橋包租公四套房
1,280萬元
/
22.69坪
高投報收租滿租發財套房
1,380萬元
/
22.78坪
中華商圈大户新裝潢
1,612萬元
/
32.06坪
資料處理中,請稍等。